Die römische Agoraund der Turm der Winde

Im Zeitalter der Grand Tour präsentierte sich die römische Agora in Athen als lebendiger Ort, an dem osmanisches Alltagsleben nahtlos in die antiken Ruinen integriert war. Der Turm der Winde, ursprünglich als astronomische Uhr und Wetterstation konzipiert, diente in künstlerischen Darstellungen jener Zeit als atmosphärisches Motiv. Ein bekanntes Gemälde zeigt etwa tanzende Derwische in diesem imposanten Bauwerk – eine künstlerische Interpretation, die den europäischen Blick auf das „exotische“ Osmanische Reich und seine kulturellen Besonderheiten widerspiegelt. Auch das Tor der Athena Archegetis war in ein türkisches Gebäude integriert, was eindrucksvoll verdeutlicht, wie antike Bauten fortwährend in den pulsierenden städtischen Kontext der osmanischen Ära eingebunden blieben. [ mehr….]

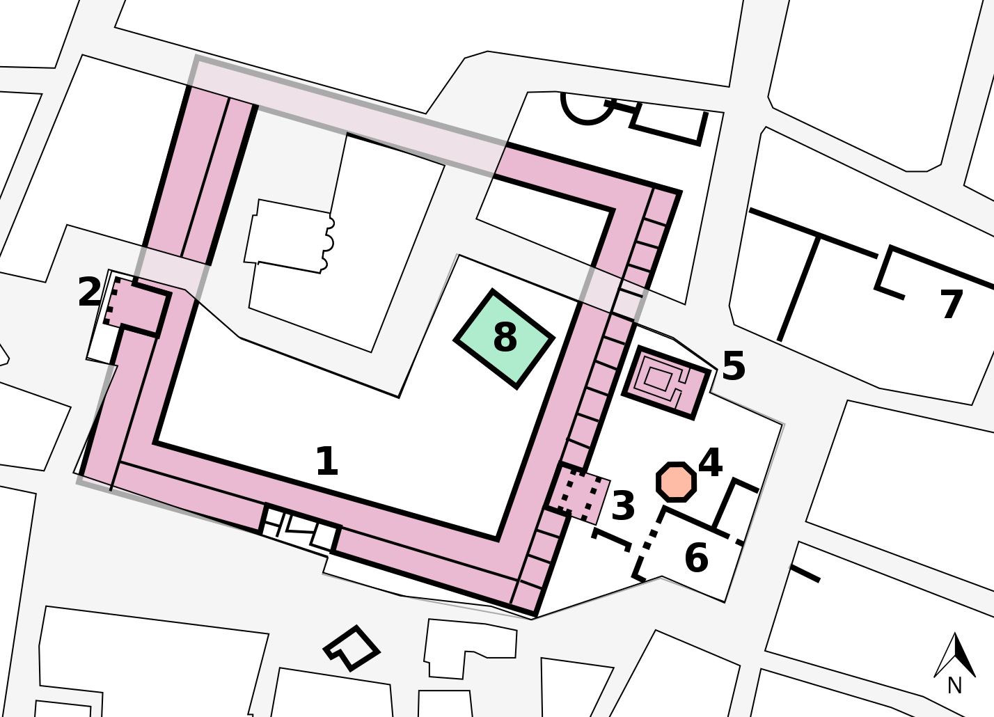
Heute betritt man den archäologischen Park „Römische Agora“ beim westlichen Propylon, dem Tor der Athena Archegetis (2). In der Antike strömten die Menschen auch über das Osttor (3) in die von einem Peristyl umgebene Agora (1). Außerhalb des Marktplatzes befindet sich der im 1. Jh. v. Chr. erbaute Turm der Winde (4). Ebenfalls östlich der Agora stehen die Überreste des Agoranomeions (6), bei dem es sich um ein Büro der Marktbeamten oder um ein Gebäude, das für den Kaiserkult benötigt wurde, handeln kann. Die öffentlichen Toiletten (Vespasianae) (5) für die Marktbesucher waren auch außerhalb des eigentlichen Marktplatzes errichtet worden. Die restaurierte Fethije-Moschee (8), die nach der türkischen Eroberung Athens im Jahr 1456 erbaut wurde, dient heute als Ausstellungsraum. Nicht zur archäologischen Stätte gehören die äußerst spärlichen Überreste des unter Kaiser Hadrian erbauten Pantheons (7) © Bild: Wikimedia Commons
Das Tor der Athena Archegetis: Der giebelbekrönte Rest der westlichen Toranlage ist eindeutig der am besten erhaltenen Teil der römischen Agora. Einst hatte der monumentale Eingang einen marmornen Sockel und eine Reihe von vier dorischen Säulen. Laut der Inschrift, die sich auf dem Architrav erhalten hat, wurde mit dem Bau der Anlage bereits unter Gaius Iulius Caesar begonnen. Die Fertigstellung erfolgte aber erst unter Kaiser Augustus erfolgte. In der Zeit zwischen 11 und 9 v. Chr. schließlich wurde das Propylon, das man der Athena Archegetis (Stammführerin) weihte, seiner Bestimmung übergeben. © Bild: Wikimedia Commons
Das Osttor © Bild: Wikimedia Commons
In den Säulenhallen waren die Läden untergebracht. Noch bis in das 19. Jahrhundert hinein diente das Areal als eigentlicher Marktplatz der Stadt.
Der im 1. Jahrhundert v. Chr. errichtete achteckige Turm, der als das besterhaltene antike Bauwerk in Athen gilt, befindet sich außerhalb der eigentlichen römischen Agora. Einst stand der Turm isoliert für sich. Heute ist das als Turm der Winde bekannte Gebäude zusammen mit der römischen Agora in einem archäologischen Park zusammengefasst. Der aus weißem pentelischem Marmor bestehende 13 Meter hohe Turm, der auf einem dreistufigen Sockel steht, diente als Horologion (Sonnenuhr und Wasseruhr) und als Wetterstation. An jeder der acht Seiten war eine Sonnenuhr angebracht. Auf dem konischen Dach stand eine bronzene Figur, die als Wetterfahne fungierte und so die jeweils herrschende Windrichtung anzeigte. Im Turm selbst befand sich eine Wasseruhr und andere, mit Wasserkraft angetriebene Vorrichtungen. Das dazu benötigte Wasser stammte aus einem Wasserspeicher, der von einer Quelle am Nordhang der Akropolis gespeist wurde. Der Turm ist deswegen so gut erhalten, weil er als Baptisterium einer christlichen Basilika und in türkischer Zeit als Raum genutzt wurde, in dem Derwische ihre Tänze vollführten. © Bild: Wikimedia Commons

Die Fundamente dieses quadratischen Gebäudes gehören zu den ehemaligen öffentlichen Toiletten des römischen Marktes. Die im Jh. n. Chr. errichtete Anlage befand sich damals außerhalb des ummauerten Marktbereichs. © Bild: Wikimedia Commons
BILDNACHWEIS:
- C messier: The gate of the Ancient Roman Agora of Athens. © Bild: Wikimedia Commons
- Georg Zumstrull: Turm der Winde von der Nordseite; im Hintergrund sind Teile der Akropolis zu sehen. © Bild: Wikimedia Commons
- George E. Koronaios: The Roman latrines (latrinae) in the Roman Agora of Athens. View from Pelopida Street. © Bild: Wikimedia Commons
- Davide Mauro: Easter Propylon. © Bild: Wikimedia Commons
- Tomisti: Plan Roman Agora at Athens colored.svg © Bild: Wikimedia Commons

Suchbegriff bei Google Maps:
Römische Agora Athen
BUCHEMPFEHLUNGEN
- Patrick Schollmeyer: Die 40 bekanntesten archäologischen Stätten in Athen und Attika. Nünnerich-Asmus (2019)
- Ancient Agora of Athens – Areopagus Hill. Brief history and tour. Publication of the Association of Friends of the Acropolis. (2004)
- Ulrich Sinn: Athen – Geschichte und Archäologie. Beck (2004)
- Karl W. Welwei: Das klassische Athen. Demokratie und Machtpolitik im 5. und 4. Jahrhundert. WBG (1999)
- Karl W. Welwei: Athen. Vom neolithischen Siedlungsplatz zur archaischen Großpolis: Vom neolithischen Siedlungsplatz zur archaischen Grosspolis. WBG (2001)
- Heiner Knell: Vom Parthenon zum Pantheon- Meilensteine antiker Architektur: Meilensteine der antiken Architektur. Philipp von Zabern (2013)
- Heiner Knell: Athen im 4. Jahrhundert v. Chr. - eine Stadt verändert ihr Gesicht: Archäologisch-kulturgeschichtliche Betrachtungen. WBG (2000)
- Christian Meier: Athen: Ein Neubeginn der Weltgeschichte. Pantheon (2012)
- Christian Habicht: Athen: Die Geschichte der Stadt in hellenistischer Zeit. Beck (1995)
- Jutta Stroszeck u. Andrea Schellinger: »... in einer Ruhe die wundernimmt«: Der Kerameikos in literarischen Zeugnissen von 1863 bis heute. Kadmos (2017)
- Jutta Stroszek: Der Kerameikos in Athen: Geschichte, Bauten und Denkmäler im archäologischen Park. Bibliopolis (2014)
- Renate Tölle-Kastenbein: Das archaische Wasserleitungsnetz für Athen und seine späteren Bauphasen. WBG (1994)
- Renate Tölle-Kastenbein: Das Olympeion in Athen. Böhlau (1994)
- Gottfried Gruben u.a.: Die Heiligtümer und Tempel der Griechen. Hirmer (2001)
- Savas Gogos u.a.: Das Dionysostheater von Athen: Architektonische Gestalt und Funktion. Phoibos (2008)
- Emil Reisch und Wilhelm Dörpfeld: Das griechische Theater: Beiträge zur Geschichte des Dionysostheaters in Athen und anderer griechischer Theater. Hansebooks (2019)
- Adolf Boetticher: Die Akropolis von Athen. Springer (2013)
- Christoph Höcker und Lambert Schneider: Die Akropolis von Athen: Eine Kunst- und Kulturgeschichte. WBG (2001)
- John McK. Camp II u. Craig A. Mauzy (Hrsg.): Die Agora von Athen: Neue Perspektiven für eine archäologische Stätte. Philipp von Zabern (2009)
- Hans Rupprecht Goette u. Jürgen Hammerstaedt: Das antike Athen: Ein literarischer Stadtführer. C.H.Beck (2012)
- Klaus Gallas: Reclams Städteführer Athen: Architektur und Kunst (2019)
- Peter Connolly u. Hazel Dodge: Die antike Stadt. Das Leben in Athen und Rom. Könemann (1998)
- Frank Börner: Die bauliche Entwicklung Athens als Handelsplatz in archaischer und klassischer Zeit (Quellen und Forschungen zur Antiken Welt). Tuduv (1996)
- Heiner Knell: Athen im 4. Jahrhundert v. Chr. - eine Stadt verändert ihr Gesicht. WBG (2000)
- Frank Kolb: Agora und Theater, Volks- und Festversammlung - Archäologische Forschungen, Band 9. (1981)
- Christian Meier: Athen: Ein Neubeginn der Weltgeschichte. Pantheon (2012)
- Leonhard Burckhardt u. Jürgen Ungern-Sternberg (Hrsg.): Große Prozesse im antiken Athen. C.H.Beck (2000)
- Peter Funke: Athen in klassischer Zeit (Beck'sche Reihe 2074). C.H.Beck (2019)
- Dorothy B. Thompson: An Ancient Shopping Center (Agora Picture Book 12). American School of Classical Studies at Athens (2001)
- Laura Gawlinski: Athenian Agora (Museum Guides). American School of Classical Studies at Athens (2014)
- Susan I. Rotroff , Robert D. Lamberton: Women in the Athenian Agora (Agora Picture Book, Band 26). American School of Classical Studies at Athens (2006)
- Alison Frantz: The Middle Ages in the Athenian Agora (Agora Picture Book 7). American School of Classical Studies (1961)
- Wilfried Nippel: Antike oder moderne Freiheit: Die Begründung der Demokratie in Athen und in der Neuzeit. Fischer (2008)
- Karl-Wilhelm Welwei: Das Klassische Athen. Demokratie und Machtpolitik im 5. und 4. Jahrhundert. Primus (2001)










